MENU
TOP
Top Page
商品紹介
Product
施工事例
Our Projects
Ffit stockについて
About Us
アクセス
Access
お問い合わせ
Contact Us
求人情報
宝塚・箕面・豊中・西宮・芦屋・神戸エリアでリフォーム、リノベーションなら | Ffit stock
TOP
Top Page
商品紹介
Product
施工事例
Our Projects
Ffit stockについて
About Us
アクセス
Access
お問い合わせ
Contact Us
求人情報
TOP
商品紹介
施工事例
Ffit stockについて
アクセス
お問い合わせ
求人情報
TOP
Top Page
商品紹介
Product
施工事例
Our Projects
Ffit stockについて
About Us
アクセス
Access
お問い合わせ
Contact Us
求人情報
TOPページ
リノベーション事例
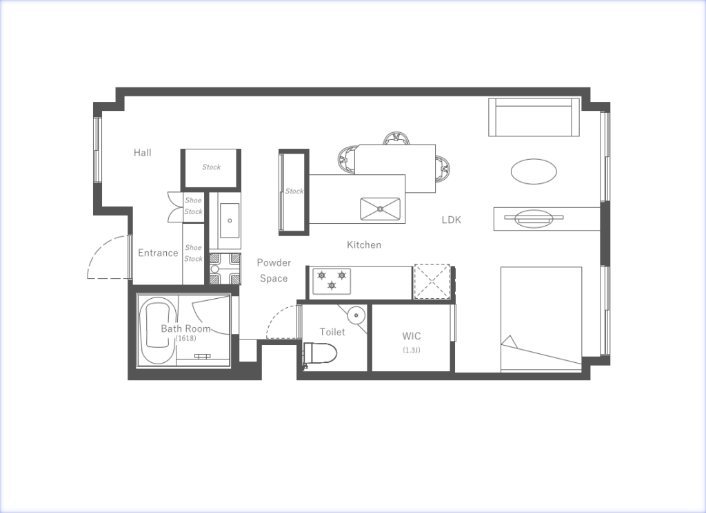
西宮市マンション リノベーション事例
西宮市マンション リノベーション事例
エリア
西宮市羽衣町
平米数
57.96㎡
築年数
44年
間取り
1LDK
Before
After
閉じる